Yuxin Machinery is proud to have a team of professional inspectors certified in ultrasonic testing and magnetic particle testing.This expertise is backed by various international certifications, ensuring the highest quality and safety standards for our material handling solutions.
Ultrasonic and Magnetic Particle Inspection Certificates
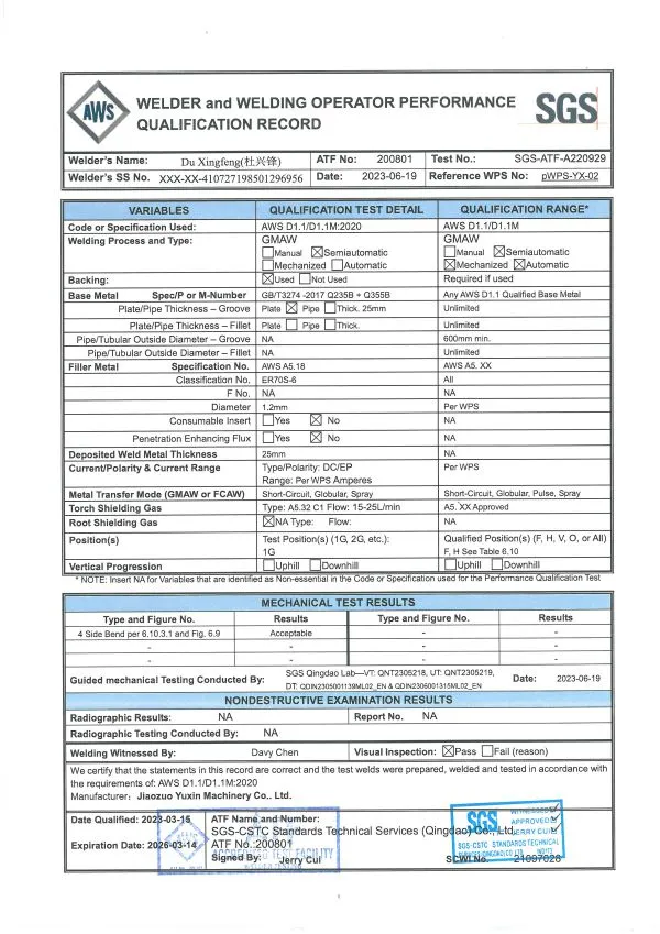
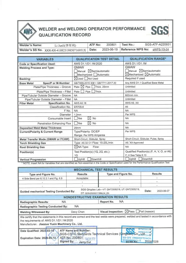
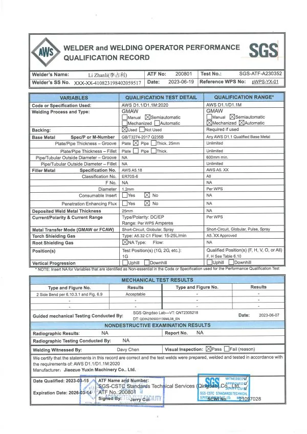
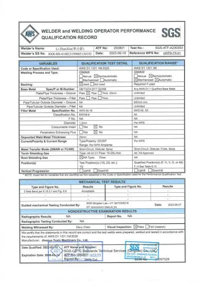
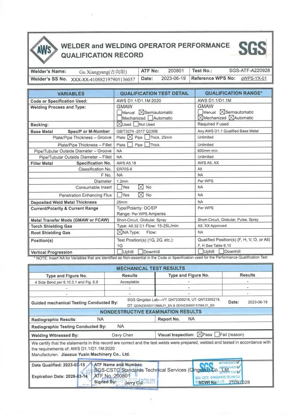
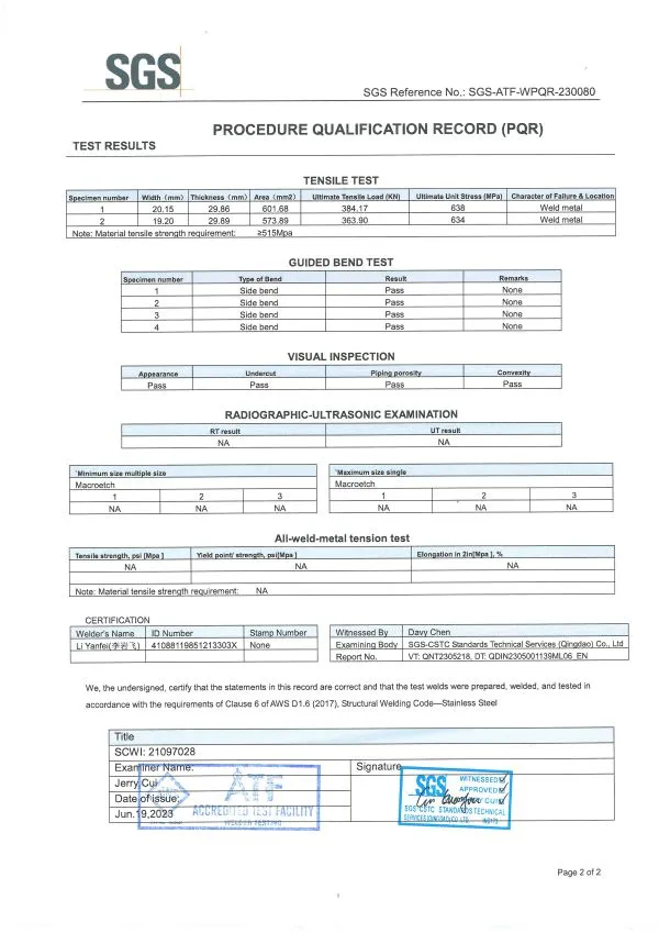
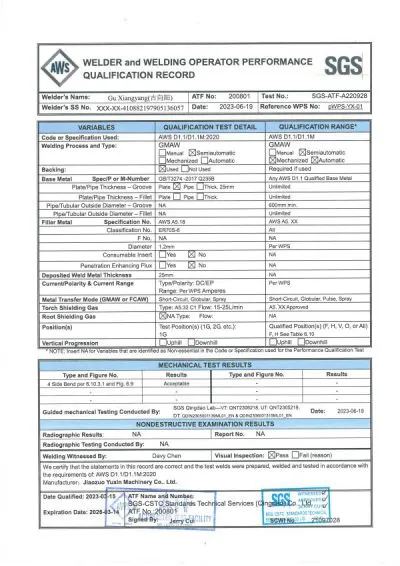
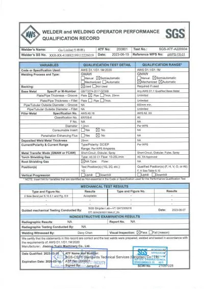
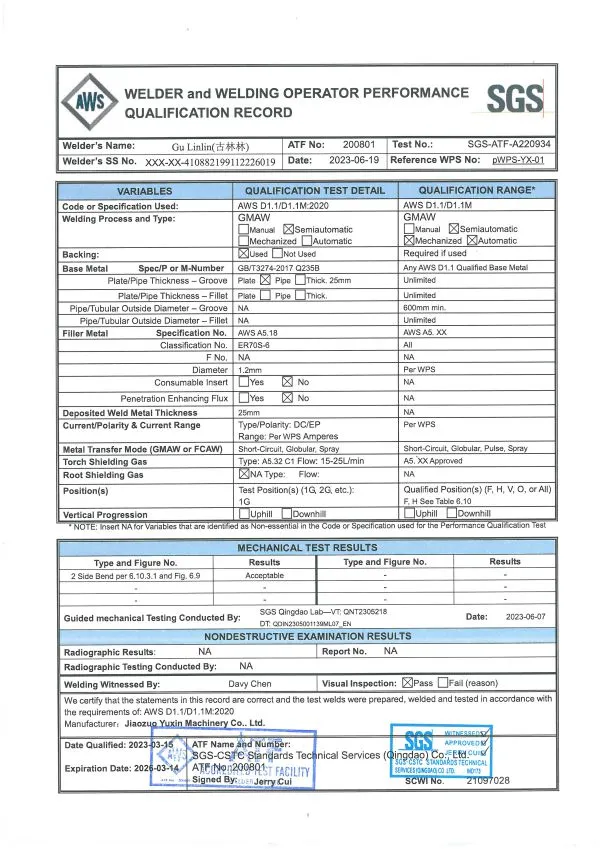
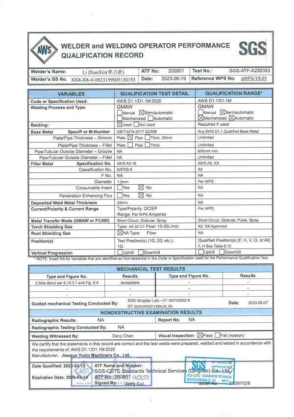
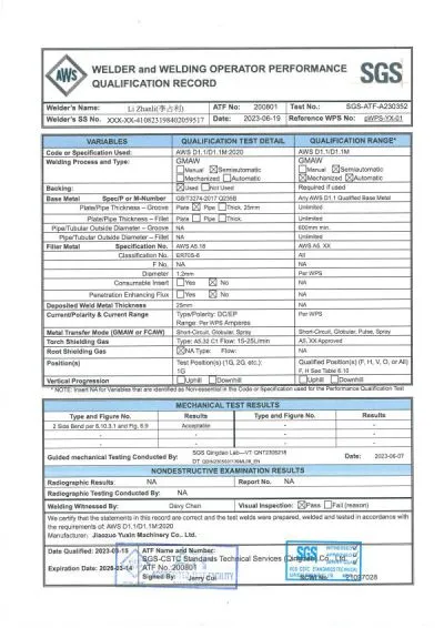
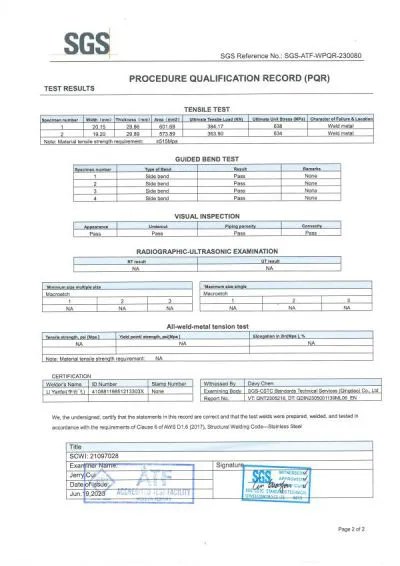
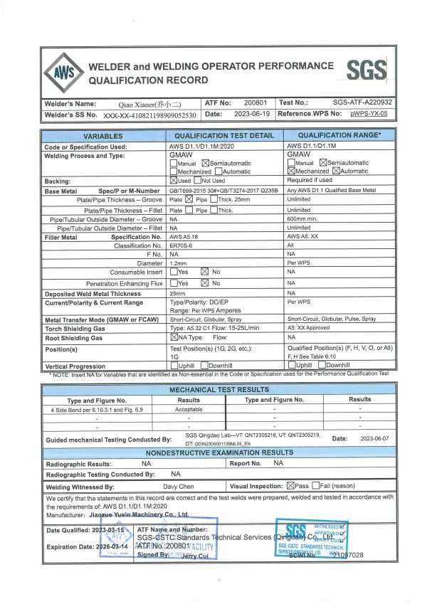
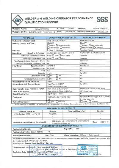
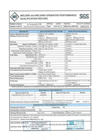
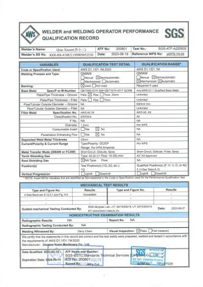
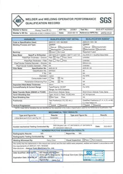
Our equipment undergoes rigorous testing, including professional inspection reports and welding certifications issued by SGS, guaranteeing superior quality assurance.
WPS/PQR Test Report
AWS Welding Certificate
Management System Certification_
ISO9001 Quality Management System Certificate
ISO14001 Environmental Management System Certificate
OHSMS Occupational Health and Safety System Certificate
Patent Certificates
Patent for convenient belt conveyor for unloading trucks and discharging materials
Patent for fabric Belt Conveyor
Patent for pitch adjustable screw lift conveyor
Patent for unloading car belt conveyor silo storage material system
Patent for car unloading conveyor storage static weighing and loading system